Bory Immobilier

Montet (Broye)

 Service des ventes
Prix de vente
CHF 480'000
Localité
Montet (Broye) (1483)
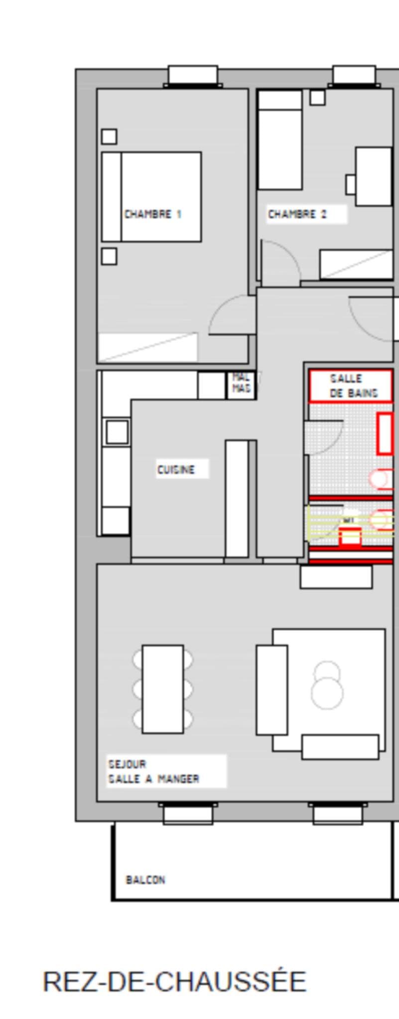
Surface
84 m2
Nombre de pièce(s)
3.5
Numéro de dossier
78848

Renseignements complets sur:

my.bory.ch
Appartement traversant de 3,5 pièces, bénéficiant d’une belle orientation et d’une belle luminosité. Rénové avec goût et avec des matériaux contemporain, parquet au sol, 2 chambres à coucher, 1 salle de bains, 1 WC/lavabo séparé, cuisine ouverte entièrement équipée avec de l’électroménager Siemens, donnant sur un grand séjour/salle à manger, prolongé par un balcon, vue dégagée sans vis-à-vis. 1 cave, ainsi qu’une place de parc extérieure à 10'000.- ou un garage box à 20'000.- (en sus du prix de vente). A visiter absolument ! Technique : - Immeuble sans ascenseur - Fenêtres triple vitrage PVC - Électroménager Siemens - Chauffage au mazout distribution par radiateurs

Ces informations sont non contractuelles.

Cliquez sur une photo pour zoomer.

Ces annonces pourraient aussi vous intéresser

Item 1 of 0