Bory Immobilier

Genève

 Service des Locations
Loyer
CHF 1'550 / mois
Charges
CHF 125 / mois
Disponibilité
Disponible de suite
Adresse
26, rue Jean- Violette
1205 Genève
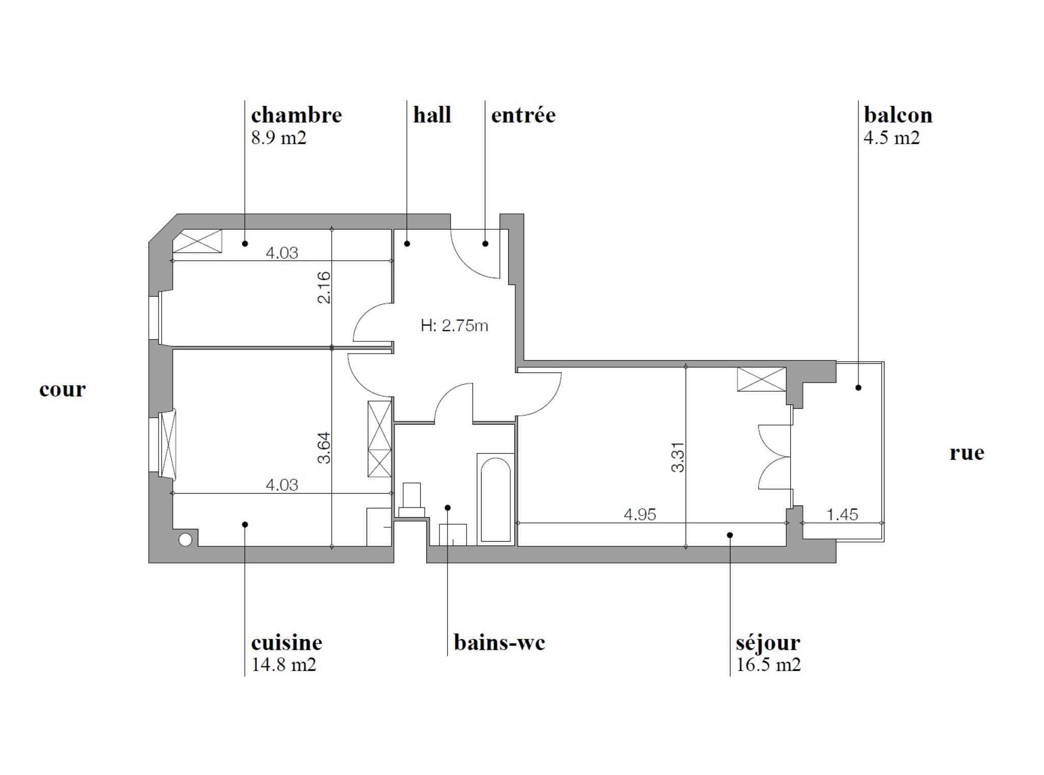
Surface
48.5 m2
Nombre de pièce(s)
2.5
Étage
1er
Numéro de dossier
68073
Demande de location

Renseignements complets sur:

my.bory.ch
A proximité de la maternité et de l'Hôpital Cantonal de Genève, des commerces et des transports publics, cet appartement se compose comme suit: -hall d'entrée; -cuisine agencée avec grande armoires de rangement; -salon avec armoire -chambrette avec armoire -salle de bains. -balcon Une cave est mise à disposition à titre gratuit et à bien plaire.

Pour les visites, contactez:

M. LUTZ

Visite groupée prévue le: 10.12.2025 à 18h00

Ces informations sont non contractuelles.

Smart Caution

Votre garantie de loyer sans dépôt bancaire, dès CHF 25.-

Calculez votre prime

Cliquez sur une photo pour zoomer.

Ces annonces pourraient aussi vous intéresser

Item 1 of 0